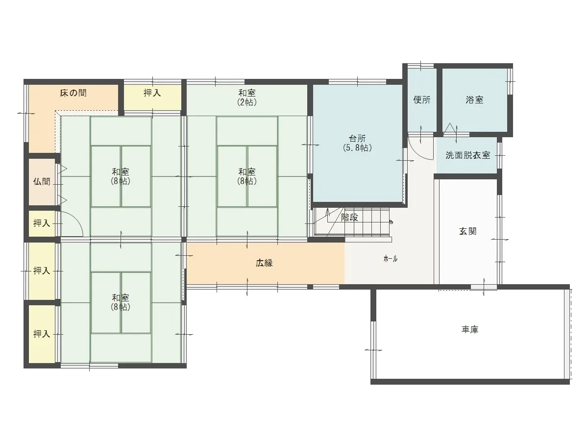
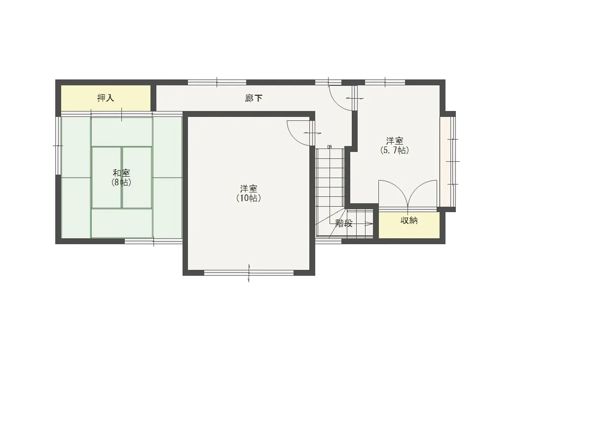
古民家部分リフォーム
2025/11/06
イメージを膨らます
費用 | 3,200万円 |
|---|---|
エリア | 斑鳩町 |
延べ床面積 | 250㎡|75坪 |
施工面積 | 176㎡|53坪 |
工期 | 162日 |
構造 | 木造 |
工事内容 | - |
お客様の声
想像していたよりもお金がかかりましたが、
新築ではなくリフォームにして大満足です。
今では立てることができない古民家リノベの家が自慢でよくホームパーティーをしています。
古民家部分リフォーム
2025/11/06
費用 | 3,200万円 |
|---|---|
エリア | 斑鳩町 |
延べ床面積 | 250㎡|75坪 |
施工面積 | 176㎡|53坪 |
工期 | 162日 |
構造 | 木造 |
工事内容 | - |
想像していたよりもお金がかかりましたが、
新築ではなくリフォームにして大満足です。
今では立てることができない古民家リノベの家が自慢でよくホームパーティーをしています。
当店でご利用いただける電子決済のご案内
下記よりお選びいただけます。